【郊外型】ワンダフル X-ZEGA_No.47【swdf-47】

※下の画像を指で長押し、スマホ保存
↓↓↓↓↓↓

※下の画像を指で長押し、スマホ保存
↓↓↓↓↓↓


電気💡ガス⛽ガソリン代を
一生払わない家🏡

 
🚀ワンダフル X-ZEGA🎆
 
売電利益+光熱費節約+ガソリン代節約☝
最大約3,000~2,000万円儲かる💰
50年先を見据えたEV車対応の最先端住宅🚘
イシンホームでしか建てられない
🌏未来の家💫
 
しかも…
12のウイルス対策設備も標準装備👌
 
🌈ワンダフル X-ZEGA
ロフト付き二階建てプラン🏡
↓今すぐタップ!詳細はコチラ↓

https://spacely.co.jp/ishin/xzega_2022_no47

※下の画像を指で長押し、スマホ保存
↓↓↓↓↓↓

※下の画像を指で長押し、スマホ保存
↓↓↓↓↓↓

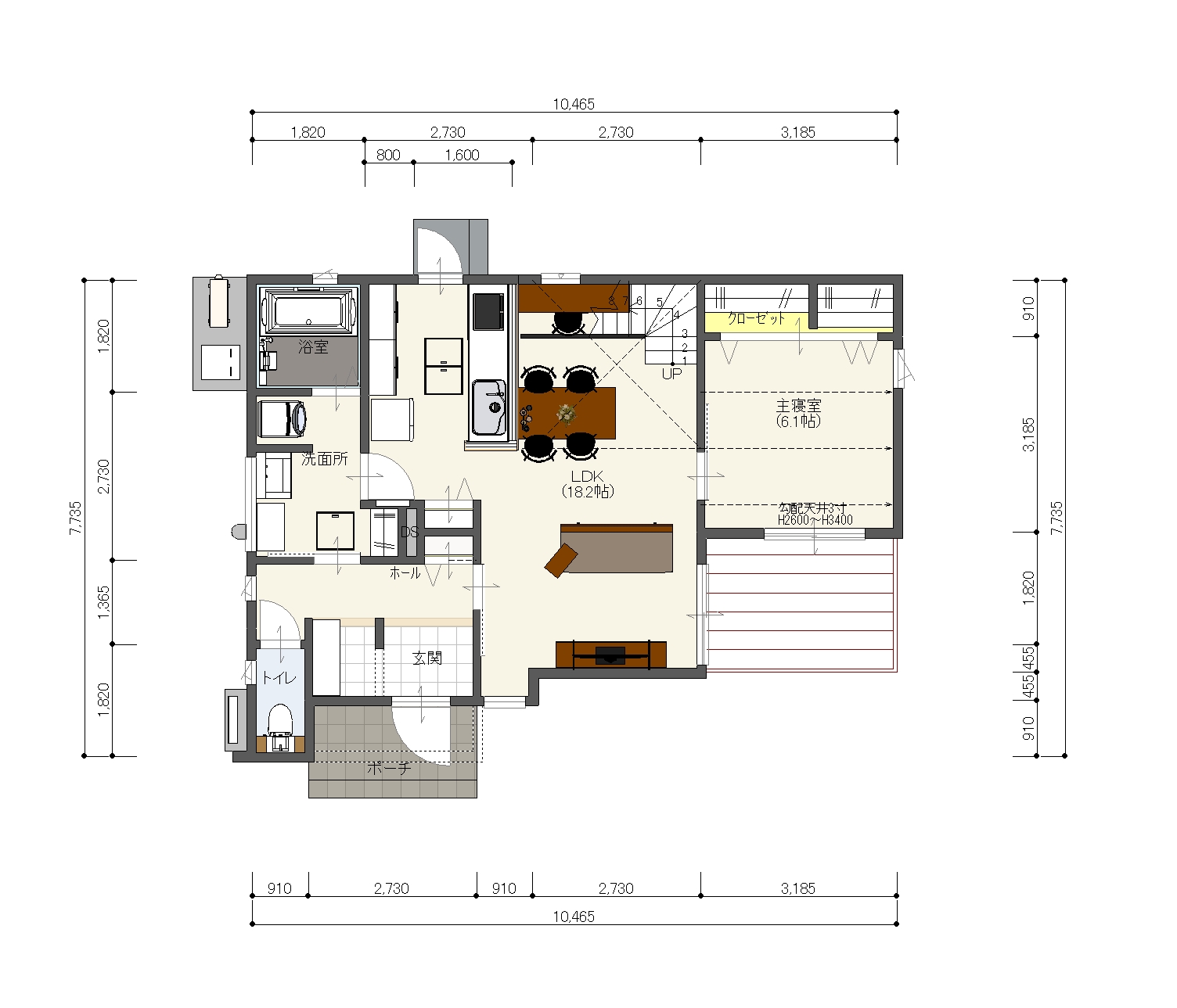
玄関向き:南東西
間口(mm):10465
奥行(mm):7735
建築面積(㎡):62.31
延床面積(㎡):95.01
施工面積(㎡):112.78
パネルの角度:南4.0寸
パネル枚数:28